Schulhaus Oberkulm
Umbau von Schulzimmer und Einbau Garderobe

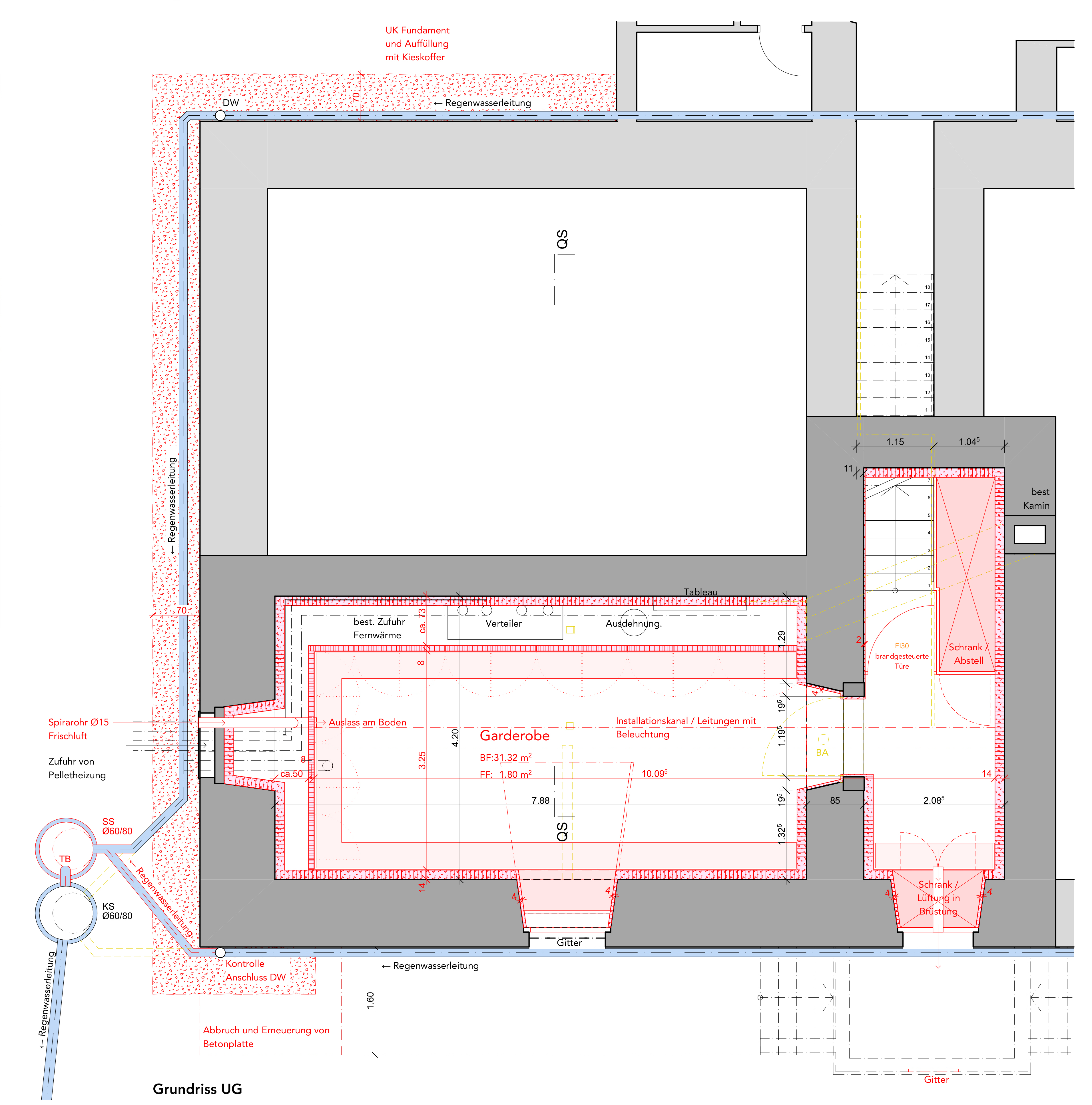
Das Schulhaus in Oberkulm benötigt mehr Flächen. Deshalb wird der Kindergarten ausgelagert und das Schulzimmer durch die Fläche des Kindergartens vergrössert. Des Weiteren wird der derzeit ungenutzte Kellerraum zur Garderobe ausgebaut.
Durch die alten Bruchsteinwände dringt Feuchtigkeit in das Gebäude. Aus diesem Grund werden die Baumaterialen intensiv zusammen mit der Firma Haga und weiteren Spezialisten abgesprochen. An den besonders feuchten Stellen wird der Sockelbereich ausgehoben, abgedichtet und ein Kies-Sickerschicht vorgesehen. Dadurch wird verhindert, dass zusätzliche Feuchtigkeit in die Bausubstanz eindringt und durch das Mauerwerk nach oben zieht. Hinzu kommt, dass das Projekt aufgrund des Schulbetrieb zeitlich schnell vorangetrieben werden muss.




