Schloss Hettenschwil
Ausbau Scheune, Umbau massiver Teil

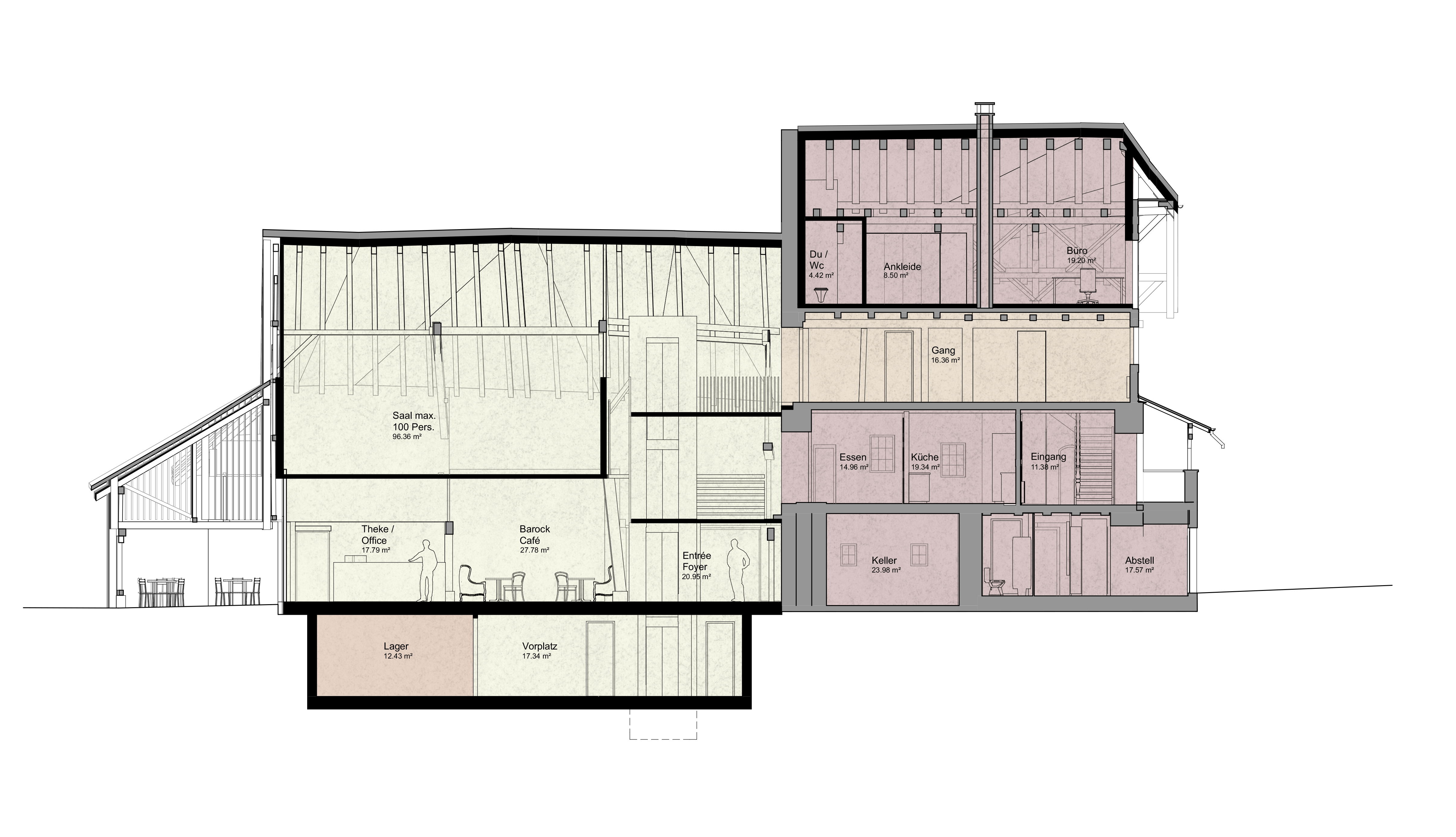
Das Schloss zum Einhorn wird zu einem lebendigen Kultur- und Begegnungsort umgestaltet, der Raum für Veranstaltungen, Seminare, Feiern und Rückzug bietet. Die historische Scheune wird mit modernen Lamellen zu einer lichtdurchfluteten Eventfläche mit Barockcafé, Schlosslädeli und Bed & Breakfast-Räumlichkeiten umgebaut. Der massive Gebäudeteil bleibt äusserlich erhalten und erhält gezielt moderne Elemente wie Dachlukarnen. Der Garten mit Parkanlage, Terrasse und Rosen lädt zum Verweilen und zu Anlässen im Freien ein. Der Kulturverein zum Einhorn organisiert vielfältige kulturelle Veranstaltungen und betreibt Café und Laden. Gästezimmer, ein Saal für bis zu 100 Personen, ein Gesangsatelier sowie Praxisräume runden das vielseitige Angebot ab.





Ziel ist es, aus dem Schloss zum Einhorn einen Ort der Begegnung zu machen, wo Menschen und Kultur aufeinandertreffen. Es soll eine Oase der Menschlichkeit sein, die es den Menschen ermöglichen wird, wieder Halt, Vertrauen und Sicherheit zu finden. Aus der Scheu¬ne und dem ehemaligen Stall wird eine Eventfläche ent¬stehen, die für verschiedene kulturelle private und kommunale Veranstaltungen Platz bietet, wie z. B. Konzerte, Lesungen, Vorträge, Musikunterricht, Musik-Meisterkurse oder Ausstellungen. Verschiedene Räumlichkeiten im Schloss zum Einhorn können für Feiern, Weiterbildungen, Seminare und Klausuren, sowie Sitzungen gemietet werden. Der dazugehörige Garten bietet Freiraum, lädt ein zum Verweilen und die Natur wird so zur Quelle des Lebens. Eine Küche, die unter der Eventfläche geplant ist, wird die kulinarischen Wünsche erfüllen und die Sinne verwöhnen. Das Schloss zum Einhorn war einstmals eine Taverne, das bestehende Tavernen-Recht möchten wir somit weiterführen. Des Weiteren sind im Obergeschoss des Wohnbereiches Gästezimmer vorgesehen, die entsprechend der Geschichte des Hauses liebevoll eingerichtet werden und die Raum für Wohl¬befinden und Rückzug bieten. Im Erdgeschoss sind die Praxisräumlichkeiten geplant – in der Begegnungszone vom Ökonomieteil wird der Geschenke-Deko- und Einrichtungsladen sein zuhause finden. Das Schloss zum Einhorn soll ein Ort der Lebendigkeit sein, wo sich Menschen ihren Bedürfnissen entsprechend wohl fühlen können.
Scheune
Die ursprüngliche Konsistenz und das Volumen der Scheune soll weitmöglichst erhalten bleiben. Änderungen werden vorgenommen, wenn sie den Innen- und / oder Aussenräumen einen Mehrwert geben.
Die Scheune erhält neues Kleid aus aufgefächerten Lamellen. Diese verschaffen dem Innenraum einen besseren Bezug zum Aussenraum und mehr natürliches Licht. In der Nacht zeichnen sich die Lamellen als Lichtspiele in der Umgebung ab.
Die Innenräume sind transparent gehalten und nehmen das Thema der Lamellen auf. Alle neuen Holzelemente setzen sich durch Helligkeit und Leichtigkeit von den schweren, dunklen Balken ab. Die einladende Treppe nimmt Bezug auf die vertikalen Holzlamellen der Fassa¬de und führt den Besucher in den Saal, sowie die Bed & Breakfast Räumlichkeiten.
Durch das grosse Eingangstor der Scheune zieht es den Besucher zuerst ins Schlosslädeli. Von dort aus gelangt er weiter ins Barock Café oder über die Treppenanlage in den Saal und Bed & Breakfast Räumlichkeiten.
Das Untergeschoss ist funktional und effizient gehalten. Es ist mit WC-Anlagen, einer Künstlergarderobe, Lager¬räumen und der Technik ausgestattet.
Massiver Teil
Die Fassade wird erhalten. Der Dachstock erhält 2 Dachlukarnen. Die Formgebung lehnt sich an die alten konischen Fensterleibungen im Inneren des Gebäudes an und spiegelt diese in einer modernen Form Aussen ab. So wirken die Dachaufbauten zurückhaltend und sind trotzdem als moderne Elemente abzulesen. Zusätzlich unterstützen sie den herrschaftlichen Charakter des Gebäudes. Die Fluchten werden aus den beiden unteren Fenstern übernommen.
Umgebung
Die alte Eiche und der Park bieten malerische Verweilmöglichkeiten auf dem Schlossgelände. Von der im Südwesten liegenden Holzterrasse aus geniesst man den Blick in die Umgebung. Das liebevoll gestaltete Stück Natur ladet zu erholsamen Spaziergängen ein. Auf dem Grundstück befinden sich 7 Parkplätze und weitere Abstellmöglichkeiten in der nahen Umgebung.
Kulturverein
Der Kulturverein zum Einhorn, gegründet Silvester 2012 ist Träger der kulturellen, sozialen und gesellschaftlichen Veranstaltungen im Schloss zum Einhorn. Er wird diese fördern und ermöglichen. Dazu wird er die benötigten finanziellen Mittel beschaffen und die Veranstaltungen bekanntmachen, bewerben und verankern. Zurzeit sind 50 Personen aus der Umgebung und schweizweit Mitglied. Wir veranstalten Kulturcafés, Konzerte, Erlebnis-Brunches, Flohmärkte, Weihnachtsmärkte, Gartenausstellungen, Bilder- und Möbelausstellungen, Lesungen, Tanzsoirées, Kurse für Kunsthandwerk und weitere kulturelle und soziale Veranstaltungen. Wir sind Partner bei kleineren und grösseren Feierlichkeiten wie Geburtstage, Hochzeiten, Tauf- und Firmfesten, Firmenanlässen und Foto-Shootings im Garten.
Barockcafé und Geschenke-Deko-Einrichtungsladen
Entspannung und Genuss. In unserem Barock Café in stilvollem Ambiente, geführt vom Kulturverein, können Sie sich bei Kaffee, Tee mit selbstgemachten Kuchen und Torten entspannen, geniessen und die Seele baumeln lassen. Bei guten Wetterbedingungen findet man im Garten überall ein Sonnen- oder Schattenplätzli, zum Verweilen und Geniessen.
In unserem Schlosslädeli finden Sie eine grosse Auswahl von besonderen Geschenkideen, zu finden sind: Deko- und Einrichtungsgegenstände. Aus verschiedenen Ländern haben wir wärmende, dekorative Schals (von Mischgewebe bis feinstes Cashmere). Dazu finden sich ausserdem Selbstgemachtes aus dem eigenen Garten, Konfitüren, Gewürze und Vieles mehr.
Bed- und Breakfast
Im 2. Obergeschoss entstehen 3 Gästezimmer mit eigenem Bad / WC, welche als Übernachtungsmöglichkeit für unsere Kursleiter, Künstler und Gäste aus nah und fern Platz bieten. Ausserdem ist geplant, dass wir mit Aargau Tourismus, „Bed & Breakfast“ und der Stiftung „Ferien im Baudenkmal“ und dem Paul-Scherrer-Institut zusammenarbeiten und damit Gäste ins Untere Aaretal bringen. Den Gästen offerieren wir auf Wunsch ein reichhaltiges Frühstück mit regionalen Produkten.
Saal / Übungs- und Veranstaltungslokal Künstler
Im Ökonomieteil, oberhalb der Begegnungszone ent¬steht ein multifunktionaler Saal für bis zu 100 Gästen. Geplant sind Aktivitäten im Bereich Musik, Kleinkunst, Vorträge, Seminare, gemeinnützige und Firmenanlässe, sowie kommunale Aktivitäten. Der Saal kann mit einer mobilen Einrichtung (Stühle und Tische) nach ihren Wünschen unterschiedlich gestaltet werden. Übliche Seminar-Geräte wie Beamer, WLAN und Flipchart und ein Flügel sind ebenfalls im Angebot. Für die Proben und Aufführungen von Dorfvereinen (Musik, Theater etc.) steht der Saal ebenfalls zur Verfügung. Der Saal kann auch für unsere Aussen-Veranstaltungen als „Schlecht¬wetter-Variante“ genutzt werden (Hochzeit, Vermietungen etc.)
Atelier für Gesang
Im Atelier für Gesang können sie ihre Stimme kennen lernen, ihre Sprech- und Gesangsstimme kultivieren. Markus J. Frey kann mit seiner 20-jährigen Erfahrung ihnen weitere Schritte aufzeigen. Singen ist gesund.
Aussenanlage / Garten und Möglichkeiten
Um das Gebäude ist eine gepflegte Parkanlage angelegt, wo es Sonnen- und Schattenplätze gibt. Über 100 Rosen, Blumen, Kräuter, Obst- und Laubbäume laden zum Verweilen ein. Mögliche Veranstaltungen sind Gartencafés, Hochzeiten, private und öffentliche Gartenanlässe, Konzerte, Brunches uvm.
Praxisraum
Ein Raum der Stille und der Einkehr. Ein Raum liebevoller Energien und Licht. Es bietet Platz für all das, was der Mensch ist und bringt. Thomas Bodmer begleitet sie in verschiedenen Situationen ihres Lebens. Mediale Beratung und Begleitung, Lebenshilfe, Coaching und Seelen¬gesundheit.


